产品中心
联系我们
金年会在线登陆
地址:辽宁省大连市庄河市徐岭镇杨树房村大连新兴产业经济区办公室212室
CM2紧凑型内门
DYNACO CM2 是一款适用于频繁使用的中小型室内高速门。极高的开启/关闭速度与密封性提高了物流效率,有效的防止灰尘,湿气及污垢进入室内,为您的提供安逸的工作环境。DYNACO CM2 门帘柔软而富有弹性,整个门帘没有任何负重及硬质材料,确保在紧急情况下对操作员与货物进行彻底的保护
关键词:
紧凑型
安装
需要
空间
尺寸
开启
最大
速度
卷轴
客户
- 产品描述
-
高速开启及关闭
开启:可达2.4米/秒
国际专利级“齿轮齿条驱动”技术独一无二的驱动系统
高密封性
专利的轨道技术实现高密封性,减少对热量的损失而达到最大节能,同时摒弃了传统的刀片及毛刷密封系统
当门受到撞击后,该门配置脱轨自动修复系统, 无需任何手动复原。可使门的停工时间和维修成本降到最低
彻底安全
整个门帘部分没有任何硬质材料。电子眼及专利的WDD无线防夹装置可保证门的安全运行
开门机
由变频器驱动的电机可确保门平稳,顺畅的运行。该技术可保证门缓慢启动和缓慢停止,从而大大的延长了电机的寿命
DYNALOGIC 控制箱
功能强大的自我检测控制系统及可以扩展功能的丰富接口,可最大限度的满足客户对门不同控制功能及自动功能的需求
符合欧洲标准EN13241-1
欧洲标准EN13241-1 特性 标准 测试依据 测试结果 防水渗透 EN12425 EN12489 1级 抗风载荷 EN12424 EN12444 2*级 气密性能 EN12426 EN12427 1级 安全开启 EN12453 EN12445 通过 机械阻力 EN12604 EN12605 通过 意外移动 EN12604 EN12605 通过 耐热性 EN12428 EN12428 6,02W/m²K 性能(周期) EN12604 EN12605 1000,000 *表示抗风载荷分类用于最大尺寸。用于最大尺寸可达到 宽54500mm X 高5500mm的
门:3级产品特点 最大尺寸 宽5500mm*高5500mm 开启速度
关闭速度
开启速度可达2.4米/秒
关闭速度 1.2米/秒框架结构 镀锌钢
可选项:不锈钢卷轴 钢- Ø 102x 2 mm. 侧导向条 侧导向条:材料为加强型聚乙烯
开门机 功率 750瓦或1500瓦,根据尺寸与开启速度
防护等级 IP 65控制箱 DYNALOGIC控制箱:
控制箱安装在门旁边,它配备了一个开门按钮,
关门按钮,紧急停止开关及一个电源开关
防护等级:IP54 带有变频器标配探测器 门轨上的光电保护
WDD无线安全软底边保护系统电压
频率单相230伏-23安
0,75 kW = 14 A / 1,5 kW = 18 A
50-60Hz门帘颜色可选 黄色 RAL1003 绿色 RAL6005
橙色 RAL2004 灰色 RAL7035
红色 RAL3000 白色 RAL9010
蓝色 RAL5002 黑色 RAL9005侧导轨

门帘拉链视图

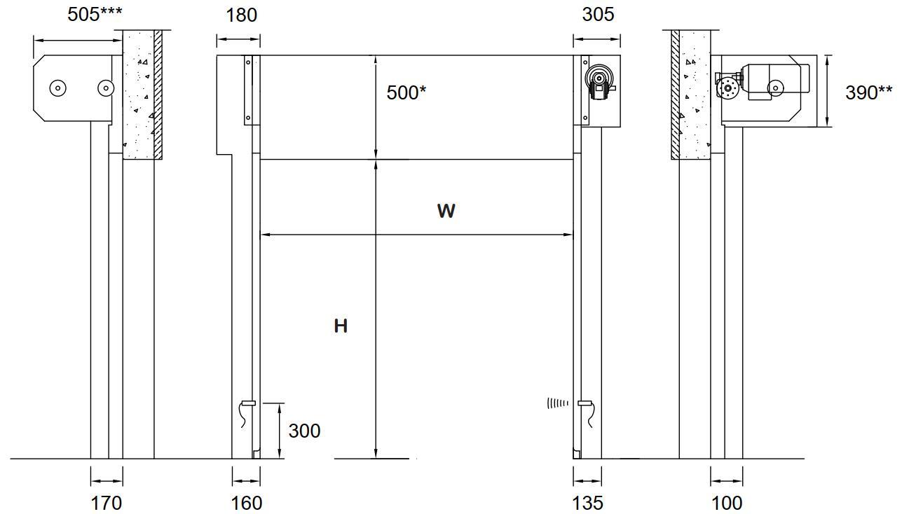
CM2高速内门安装需要的空间


*在客户需要卷轴罩并且门洞高>4000mm的情况下,所需的安装空间为650mm。当安装空间不足时,请咨询DYNACO授权经销商
**在客户需要卷轴罩并且门洞高>4000mm的情况下,所需的安装空间为600mm
***在客户需要卷轴罩并且门洞高>4000mm的情况下,所需的安装空间为650mm
所有标注的尺寸只是本产品本身需要的净尺寸,不包括安装和维修需要的额外空间
相关产品
免费获取产品报价

